Eqplan

Construindo sonhos

Para nós,

Desvendando o COSCIP: Projeto de Prevenção e Combate a Incêndio (PPCI)

O Primeiro Passo para Regularizar seu Imóvel com o CBMERJ

Construir, reformar ou até mesmo manter um imóvel no Rio de Janeiro sem pensar na segurança contra incêndio é, literalmente, um risco enorme! Não importa se é uma pequena loja, um restaurante charmoso, uma escola, um hospital ou um grande condomínio residencial: para que sua edificação seja considerada segura e esteja em conformidade com a lei, ela precisa ter o Projeto de Prevenção e Combate a Incêndio (PPCI) devidamente elaborado e aprovado pelo Corpo de Bombeiros Militar do Estado do Rio de Janeiro (CBMERJ).

Mas o que exatamente é esse tal de PPCI e por que ele é tão crucial? É sobre isso que vamos falar neste terceiro texto da nossa série “Desvendando o COSCIP”. Prepare-se para detalhar o processo de elaboração e aprovação do PPCI, entender por que ele é o ponto de partida absoluto para a regularização do seu imóvel, quais são os documentos necessários para essa jornada, quem realmente pode elaborar um projeto tão técnico e os principais desafios que você pode encontrar no caminho.

Nosso objetivo é desmistificar o PPCI e te ajudar a dar o primeiro e mais importante passo para ter seu imóvel seguro e em total conformidade com as rigorosas normas de segurança do Rio de Janeiro. Vamos nessa!

PPCI: Mais Que um Desenho, Um Mapa de Segurança

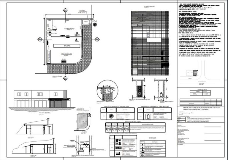
O PPCI (Projeto de Prevenção e Combate a Incêndio) é o documento técnico mais importante quando o assunto é segurança contra incêndio em edificações no Rio de Janeiro. Pense nele como o “plano mestre” que detalha como seu imóvel será protegido contra o fogo, desde a prevenção até a evacuação e o combate em caso de incêndio. O PPCI não é apenas um amontoado de projetos; é um guia estratégico que garante a vida dos ocupantes e a integridade da estrutura.

No PPCI, são especificados todos os sistemas e equipamentos de segurança exigidos pelo COSCIP e suas Notas Técnicas (NTs), adaptados às características específicas da sua edificação. Isso inclui:

  • Medidas de Proteção Passiva: Como a estrutura resistirá ao fogo, a compartimentação para conter chamas e fumaça.
  • Sistemas de Detecção e Alarme: Onde estarão os detectores de fumaça e calor, e como o alarme será acionado para alertar todos.
  • Meios de Evacuação: O trajeto das saídas de emergência, a largura das escadas, e a iluminação que guiará as pessoas em caso de falta de luz.
  • Sistemas de Combate Ativo: A localização e tipo de extintores, os pontos de hidrantes, a instalação de chuveiros automáticos (sprinklers) quando necessários, entre outros.

Por Que o PPCI É o Ponto de Partida para a Regularização?

Um imóvel só é considerado regular e seguro pelo CBMERJ depois que seu PPCI é aprovado e as medidas nele especificadas são devidamente implementadas e vistoriadas. Sem essa aprovação, seu imóvel fica vulnerável e exposto a uma série de riscos e problemas:

  1. Segurança de Vidas: O motivo principal. Um projeto bem feito significa que, em uma emergência, os ocupantes terão as melhores chances de abandonar o local em segurança.
  2. Proteção Patrimonial: Minimização de danos à estrutura e aos bens, evitando perdas financeiras enormes.
  3. Conformidade Legal: Imóveis irregulares estão sujeitos a multas pesadas, interdição e até inviabilização de seguros. Sem o PPCI aprovado, você não consegue o Certificado de Aprovação (CA), que é o documento emitido pelo CBMERJ atestando a conformidade do seu imóvel.
  4. Licenciamento e Funcionamento: Empresas e comércios precisam do CA para obter ou renovar seus alvarás de funcionamento. Sem ele, a operação é ilegal.
  5. Valorização do Imóvel: Um imóvel com segurança em dia e documentação regularizada agrega valor de mercado e transmite confiança.

Quem Pode Elaborar o PPCI? (Spoiler: Não É Qualquer Um!)

Este é um ponto crucial e que merece total atenção: o PPCI não pode ser feito por qualquer pessoa ou empresa. A elaboração e a responsabilidade técnica do projeto exigem conhecimento da legislação (COSCIP e suas NTs), normas técnicas (ABNT) e engenharia de segurança contra incêndio.

Portanto, o PPCI deve ser elaborado por um profissional devidamente qualificado, credenciado e habilitado para tal. Isso significa um:

  • Engenheiro Civil, de Segurança do Trabalho, Mecânico ou Eletricista;
  • Arquiteto;

… que possua registro ativo no seu respectivo conselho de classe (CREA ou CAU) e, fundamentalmente, que seja credenciado junto ao Corpo de Bombeiros Militar do Estado do Rio de Janeiro (CBMERJ) para atuar com projetos de segurança contra incêndio.

Esse profissional é o único capaz de:

  • Interpretar corretamente o COSCIP para o seu caso específico.
  • Realizar a análise de risco da sua edificação.
  • Dimensionar corretamente todos os sistemas (hidrantes, sprinklers, saídas de emergência, etc.).
  • Elaborar as plantas e memoriais descritivos conforme as exigências do CBMERJ.
  • Assinar o projeto, assumindo a Responsabilidade Técnica (RT).

Confiar seu PPCI a um amador ou a alguém sem a devida habilitação é um risco gigantesco que pode gerar sérios problemas na aprovação, retrabalho, multas e, o mais grave, comprometer a segurança da sua edificação.

Documentos Essenciais para o PPCI

Para iniciar o processo de aprovação do PPCI, você precisará reunir uma série de documentos e informações. Os requisitos podem variar ligeiramente dependendo da complexidade do projeto e do tipo de edificação, mas geralmente incluem:

  • Plantas de Arquitetura: Plantas baixas, cortes e fachadas do imóvel (existente ou a ser construído/reformado).
  • Anotação de Responsabilidade Técnica (ART) ou Registro de Responsabilidade Técnica (RRT): Emitidos pelo CREA ou CAU, comprovando que o profissional habilitado é o responsável pelo projeto.
  • Memoriais Descritivos e de Cálculo: Documentos técnicos que detalham os sistemas, os cálculos de dimensionamento, os materiais a serem utilizados e as justificativas técnicas das soluções propostas.
  • Laudos e Certificados: Em alguns casos, laudos de ensaios de materiais, certificados de conformidade de equipamentos, etc.
  • Análise de Risco: Documento que classifica o risco da edificação e justifica as medidas de segurança propostas.
  • Documentos do Imóvel e do Proprietário/Responsável.

Os Desafios no Caminho do PPCI: Navegando pelas Exigências e Evitando Armadilhas

O processo de aprovação do PPCI, embora essencial, pode apresentar alguns desafios específicos. Compreendê-los é o primeiro passo para superá-los com sucesso e garantir que seu imóvel obtenha o Certificado de Aprovação sem dores de cabeça.

  1. A Complexidade e Variações da Legislação (COSCIP e NTs):
    • Especificidade das NTs: Cada tipo de edificação (residencial, comercial, industrial, hospitalar), sua altura, área construída e risco de incêndio se enquadram em diferentes níveis de exigência. Por exemplo, uma loja de 50m² tem requisitos de extintores e sinalização mais simples que um hospital com múltiplos andares e gases medicinais. A NT 1-04 (Classificação das Edificações e Áreas de Risco) é o ponto de partida para essa definição.
    • Regras por Tipo de Medida:NT 2-02 (Sistema de Hidrantes), por exemplo, detalha o tipo de bomba, a vazão e a pressão necessárias para um sistema de hidrantes, que variam conforme o tamanho e risco do prédio. Não basta apenas “colocar um hidrante”, ele precisa ser dimensionado corretamente. O mesmo vale para o número de extintores (NT 2-01) ou a largura mínima de uma rota de fuga (NT 2-08), que dependem da população e da distância a ser percorrida até a saída.
    • Constantes Atualizações: As normas podem passar por revisões. Um profissional atualizado garante que seu projeto esteja em conformidade com a versão mais recente.
  2. Adequação de Edificações Existentes (o “Retrô” e o CBMERJ):
    • Um dos maiores desafios é adaptar prédios antigos, que foram construídos antes das normas atuais, às exigências do COSCIP. Isso pode envolver grandes reformas estruturais para garantir o Tempo Requerido de Resistência ao Fogo (TRRF) (NT 2-20), instalação de sistemas de combate que não existiam (como sprinklers em edifícios de mais de 23 metros de altura, conforme NT 2-03), ou a criação de novas saídas de emergência e escadas à prova de fumaça.
    • Nesses casos, é comum a necessidade de soluções técnicas alternativas ou compensatórias, que precisam ser justificadas e aprovadas pelo CBMERJ, o que exige ainda mais conhecimento e habilidade do profissional.
  3. Processos Burocráticos e Prazos:
    • O trâmite para aprovação do PPCI no Corpo de Bombeiros envolve diversas etapas: protocolo da documentação, análise do projeto por técnicos, solicitação de correções (se houver), e, finalmente, a vistoria no local. Cada etapa tem seus prazos e especificidades.
    • Qualquer erro ou falta de documento pode gerar atrasos significativos, prolongando o processo de regularização e impactando o cronograma de obras ou o funcionamento do negócio. A experiência do profissional aqui é fundamental para agilizar o processo.
  4. Custo da Implementação das Medidas:
    • Embora a segurança não deva ser vista como um custo, mas SIM como um investimento, a instalação dos sistemas e a adequação do imóvel podem representar um valor significativo. O desafio é encontrar soluções que atendam às normas de forma eficiente e otimizada, sem gastos desnecessários. Um bom projeto pode, inclusive, apresentar soluções mais inteligentes e econômicas a longo prazo.

A chave para superar esses desafios está na escolha do profissional certo e no planejamento. Contratar uma empresa ou um engenheiro/arquiteto especialista em segurança contra incêndio e credenciado no CBMERJ é o seu maior trunfo. Eles não só elaboram o projeto, mas também orientam sobre os documentos, acompanham o processo de ponta a ponta e sugerem as melhores soluções técnicas e econômicas, transformando o que parece um emaranhado de regras em um caminho claro para a segurança e a regularização.

A EQPLAN: Sua Parceira Estratégica na Regularização do Imóvel

Quando o assunto é segurança contra incêndio, você precisa de quem entende do assunto. A EQPLAN conta com os melhores profissionais, todos devidamente credenciados junto ao Corpo de Bombeiros, prontos para descomplicar seu PPCI. Garantimos um serviço de excelência, do projeto à aprovação, para que seu imóvel esteja sempre seguro e em conformidade.

Ao compreender a importância e a complexidade do PPCI, você dá um passo gigante rumo à regularização e, principalmente, à segurança do seu imóvel. No próximo texto da nossa série “Desvendando o COSCIP”, vamos mergulhar nos detalhes da vistoria do Corpo de Bombeiros e como garantir que seu imóvel passe por ela sem problemas, obtendo o tão sonhado Certificado de Aprovação (CA).

Está perdendo o sono com a regularização do seu imóvel no Rio de Janeiro? 😥

A EQPLAN descomplica o seu PPCI! 🚀 Clique agora e garanta a segurança do seu patrimônio com os especialistas credenciados no CBMERJ!

Ligue agoraWhatsApp

Eqplan

Agnaldo Santos - Engenheiro Civil e de Segurança do Trabalho